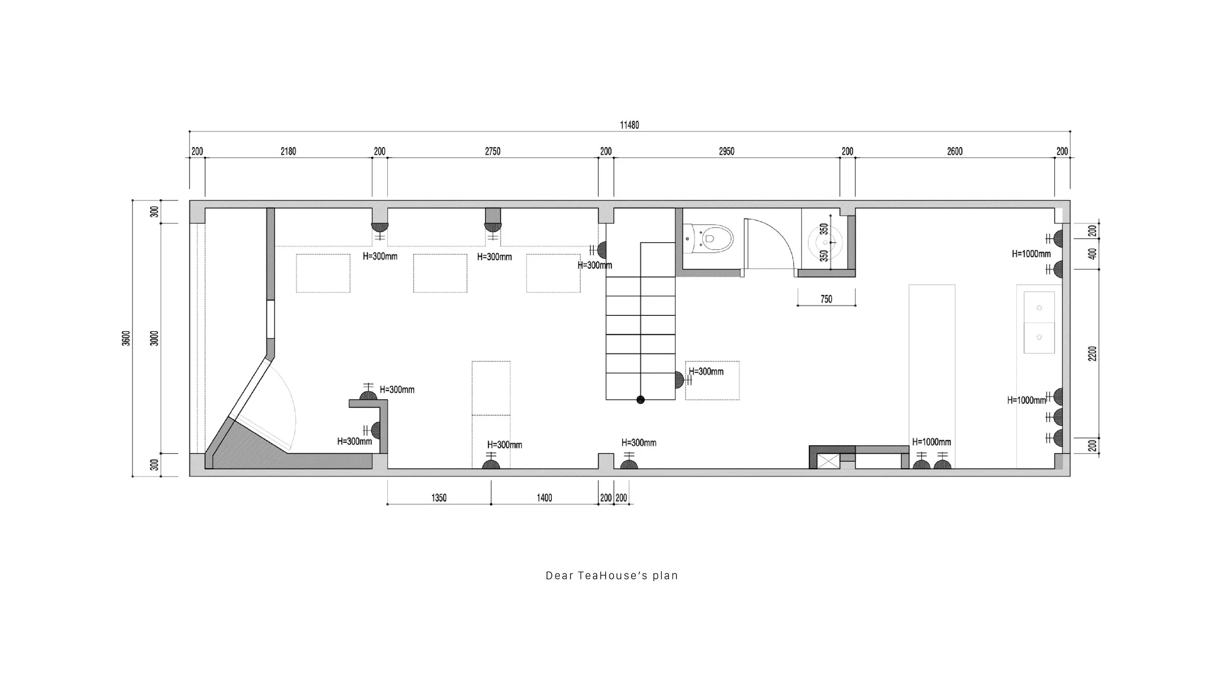
Dear TeaHouse

Dear TeaHouse is Vietnam’s 1st modern concept tea house located in the heart of city centre, near the symbolic Ben Thanh Market, Saigon. Despite being in the busy center, Dear Tea House offers the tranquility of humble alley, allowing for gently and gracefully

They offer a welcome break from the stresses of everyday life. It’s a place where you can enjoy a moment of solitary contemplation or meet friends for leisurely conversation. And while this renovation certainly represents a contemporary coat of fresh paint, the designers were quick to let be – even showcase – the harmony of materials. There are moments of pure delight as sections of white space, tree and pine wood aroma, hover over freshly cured terrazzo floors and modern scandinavian furniture.

Coffee Tea & I Magazine:

“Founded by a group of young Vietnamese from a creative industry, the teahouse plants a flag of tea and depicts a lovely lifestyle with domestic culture and beautiful design.”

“We travel a lot, go around Asia, and find that each country has many ways to keep their traditional tea alive in the modern life. We ask ourselves why we don’t create a space to bring traditional tea to young people and make them love tea again.” This passion brought together Aimee Thai, creative director & co-founder of Maki Studio, Marc Tran, photographer & co-founder of Maki Studio, and Danh Le, an art director. Their belief that “a healthy drink shouldn’t be forgotten among bubble tea and milk tea in the market” is now translated into Dear TeaHouse.

Refuge for urban souls

Dear persona is an innovative, caring, graceful, moderate, humble person who knows that they want and excel at what they do. They value honesty, imagination, thoughtful creation. They are positive and always strive to help others within their means.

They live in a beautiful world where people are kind, considerate and things are thoughtfully created - they themselves are excited by this and trying to make the this beautiful world even better. Their inner beauty and moderate, humble behaviors attract and inspire others to join them in the journey.

Previous
Previous

Bách Tác Space

Next
Next

Ecolotus